アルパックニュースレター186号
地域と共に育つ第2わらべ保育園が開園しました
待機児童の解消をめざして
「この町にも待機児童が29人もいるんですよ。」
わらべ保育園の岸園長先生は、ややため息交じりにおっしゃいました。
この町とは滋賀県の南東部に位置し、約22,200人が住む日野町のことです。
室町時代、蒲生氏の城下町となって発展し、その後蒲生家の国替えで一時活気を失いましたが、生活の活路を求めて行商に出て、近江商人の中でも「近江日野商人」と呼ばれる独特の店舗展開を全国で行ってきました。現在は、都市と農村のふれあいをめざしたまちづくりや、工業団地の建設などを進めています。
「この町が住みやすいということでしょう。」岸園長先生は、日野町に若い人が住んで子どもが多く、待機児童が増えている理由をこう説明されました。周囲に比べ住宅事情が良いことなどを言っておられるのだと思います。
日野町は、待機児童の解消をめざして、岸園長先生の運営する社会福祉法人日野福祉会にわらべ保育園に続く第2園の建設と運営を依頼しました。
わらべ保育園の第1園の設計は、アルパックの先輩である松井俊さん(A&C)が担当され、このたびそのご縁をいただいて第2わらべ保育園(以下第2園という)の設計を我々が担当させていただくこととなりました。
このプロジェクトは、林業の振興を目的とした林野庁の補助事業を活用しており、地域産材(木材)を使用することが条件であることから、木造の園舎となりました。
![]() 園庭側全景 |
![]() ランチルームテラスと街角広場 |
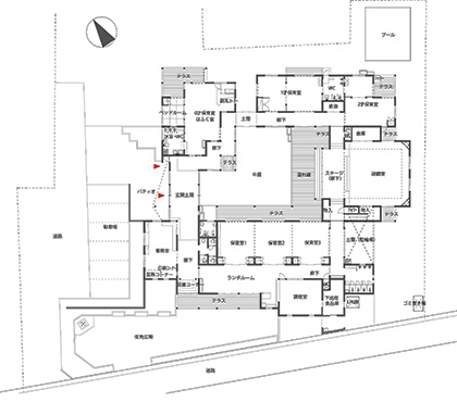
中庭囲み型の平面構成
第1園は、平屋の中庭囲み型の平面を採用しており、中庭が、多様な保育や1~2才の園児の保育に有効なスペースとして活用されていましたので、第2園においても中庭囲み型のプランとすることとなりました。平屋でかつ中庭を囲むプランは、十分な敷地の広さが必要になりますが、幸い十分な広さをもった町営住宅の跡地を町から貸与されることになり、中庭型プランが実現可能となりました。
かつての日野商人の中心であった旧街道に近く、周囲を住宅に囲まれた敷地は、保育園が立地するには道路幅員などに問題はありましたが、町が道路拡幅と新たなアクセス道路を整備することとなり、第2園のプランづくりが本格化していきました。
第2園は、中庭を中心として、0~1才児、2才児、3~5才児の保育室のゾーンを構成して配置しており、それぞれの年齢に応じた生活環境を創ることを目的としています。また、0~2才児ゾーンと3~5才児ゾーンとの間に遊戯室(ホール)を配置し、ゾーニングをより明瞭にしました。
3~5才児の保育室は異年齢保育に対応するために、保育室の固定化をせずに、稼働間仕切りにより保育室の自由度を高めています。また、3~5才児の保育室の前はランチルームとし、保育室との一体的な利用もできるようにしました。それぞれの保育室ゾーンを遊戯室やランチルーム、廊下などでつなぐことによって、行き止まりのない動線となり、園児の遊びの空間ともなっています。

第2わらべ保育園平面図
地域の中で育つ保育
第2園は、定員60名の小さな保育園ですが、地域の子育て環境の充実と地域の中で育つ保育園をめざしています。保育園が地域の中で見守られ、園児が育つ環境を創ることを設計当初からコンセプトの大きな柱ととらえていました。日野町は子どもをもつ若い世代も居住していますが、第2園が立地する地域は古くからの地域であり、高齢化も進行しています。この地に保育園ができること、幼い子どもたちの歓声がこの町に響くことを地域の人々は楽しみにしていたのです。
南側の市道に面したランチルームは、地域に開放できるように、ランチルーム南側にテラスを設け、さらに道路とテラスの間に「街角広場」と呼ばれる広場を設けています。街角広場には植栽とベンチを配置し、周囲の地域の方々が広場で休んだり、交流するための空間となっています。町営住宅当時の敷地内にはお地蔵さんがありましたが、このお地蔵さんは、この広場の一角に移設され祀られています。また、広場に面したテラスやランチルームでは調理室からお茶のサービスもできるように計画されており、地域住民の憩いの場であると同時に、園児との交流の場となることをめざしています。
第2園の平面構成の中心である中庭には、遊戯室や3~5才児保育室が面し、直接外に出られるようにテラスを巡らせています。遊戯室は、通路を兼ねたステージが中庭に面しており、大きなサッシュを開放すれば、中庭と一体となってステージとして機能するように計画しました。また、各保育室にはそれぞれテラスを設けていて、ゆったりとして豊かな環境にあるこの保育園が、まちと一体になり、外部空間と一体となった保育を実現するため、その中間領域としてテラスを位置づけています。
![]() 保育室前ランチルーム |
![]() 3~5才児保育室 |
![]() 中庭と遊戯室 |
![]() 中庭とテラス |
今後も育ち続ける保育園へ
開園してまもない保育園を訪れると、ランチルームに地域の人々が集まって、保育園を利用した地域活動の相談をされていました。園が順調に育っている姿に感激しつつ、これからもゆっくりまちの中で育っていくことを願っています。
最後に、この工事は年度末の建設資材や職人さんが不足する中で、現場担当者が大変苦労されて完成しました。多くの方のご尽力に心から感謝します。
![]() 遊戯室 |
![]() 遊戯室と中庭 |
![]() 0才児保育室前テラス |
![]() ランチルーム前テラス |
アルパックニュースレター186号・目次
ひと・まち・地域
- 地域と共に育つ第2わらべ保育園が開園しました/建築デザインプランニンググループ 高坂憲治
- 「農の都」の都市計画~篠山市都市計画マスタープラン・土地利用基本計画が策定されました/都市・地域プランニンググループ 岡本壮平・絹原一寛・清水紀行
- アルパックセミナー 都市における『農地を活かしたまちづくり』~都市と緑・農の共生に向けて~を開催しました(その2)/都市・地域プランニンググループ 岡本壮平・絹原一寛
- 再生可能エネルギーと木材、新たなコラボレーションの取り組み紹介/環境マネジメントグループ:中川貴美子・畑中直樹・大友康博 建築プランニング・デザイングループ:三浦健史

















